e% – energieeffiziente Wohnanlage Hollerstauden - Bogevischs Büro

Modellvorhaben e% - Energieeffizienter Wohnungs-bau in Ingolstadt-Hollerstauden, Albertus-Magnus-Straße

 

Ein Wohnbauprojekt, das effiziente Energienutzung mit einem intelligenten Lebensraumkonzept verbindet

 

Der Bayerische Staat subventioniert im Rahmen des e%-Programmes der Obersten Baubehörde insgesamt zehn Forschungsprojekte die innovativ und kostengünstig den Energieverbrauch im geförderten Wohnungsbau senken.

 

Das Projekt am westlichen Stadtrand Ingolstadts ist eines der zehn Pilotprojekte „e% - Energieeffizienter Wohnungsbau“. Hier werden Möglichkeiten eines sparsamen und effizienten Umgangs mit Energie im geförderten Wohnungsbau erprobt und ausgewertet. Dabei sollen die Anforderungen der EnEV um 40-60% unterschritten werden, wobei die entwickelten Energiekonzepte jeweils die örtlich energetisch wirksamste und gleichzeitig eine ökonomisch vertretbare Lösung darstellen sollen.

 

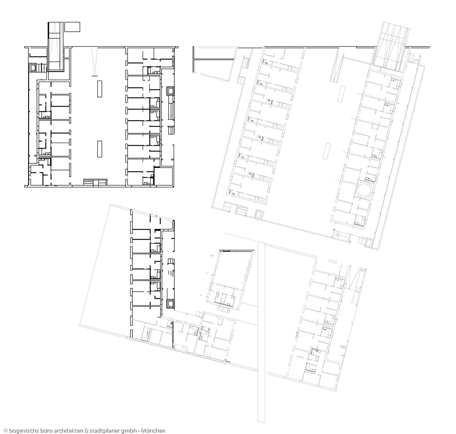
Durch ein vielfältiges Wege- und Platzsystem, differenzierte Grünräume und einer Art künstlichen Topographie entstehen maßstäblich angemessene öffentliche Freibereiche, unterstützt durch das  Angebot von gemeinschaftlichen Nutzräumen innerhalb des Quartiers. Durch die kompakten Strukturen wird eine energetisch günstige und Fläche sparende, verdichtete Siedlungsform geschaffen.

 

Der extrem niedrige Energieverbrauch der Wohnbauten ermöglicht eine Solar-Deckungsrate von ca. 60 % aller benötigten Heiz- und Warmwasserenergie. Konsequent wird dieser energetische Entwurfsansatz in die Architektur übersetzt: breite, dicke, schneeweiße Solarflügel überdecken und schützen die filigranen Holzbauten.  Das „Energiesammeln“ wird Thema auch in der Gestalt. Die Speicherung der Wärme erfolgt in 15 Meter hohen Schichtspeichern, die in die Gebäude integriert werden.

 

Das e%-Modellprojekt ist zur Minimierung von Leitungsverlusten versorgungstechnisch in zwei Abschnitte aufgeteilt. Die Wärmeversorgung erfolgt vorrangig über eine Solaranlage mit einer Gesamtfläche von ca.  850 m2 – bei entsprechendem Nutzerverhalten wird ein jährlicher Energieeintrag von etwa 280.000 bis 300.000 kWh erwirtschaftet. Die Wohnanlage wurde im Herbst 2011 fertig gestellt.

 

Das Projekt wurde mit dem Europäischen Architekturpreis für Energie + Architektur 2012 sowie einer Anerkennung des PROM 2012 und des Bauherrenpreises 2013 ausgezeichnet.

 

Für weitere Informationen stehen wir Ihnen gerne zu Verfügung: bogevischs buero, Barbara Sommer-Freudenreich, t: 089-452 35 47-0, f: -10, Email: info@bogevisch.de.

 

© bogevischs büro architekten & stadtplaner gmbh - München

 

Copyright 2018 - Alexander Bendzko - All rights reserved